Описание квартиры в "ЖК Мирный"
Предлагается 1-комнатная квартира в востребованном жилом комплексе "ЖК Мирный" 🏢.
Квартира расположена на 9-м этаже 9-этажного дома.
Отличный вариант для семьи.
Удобная планировка
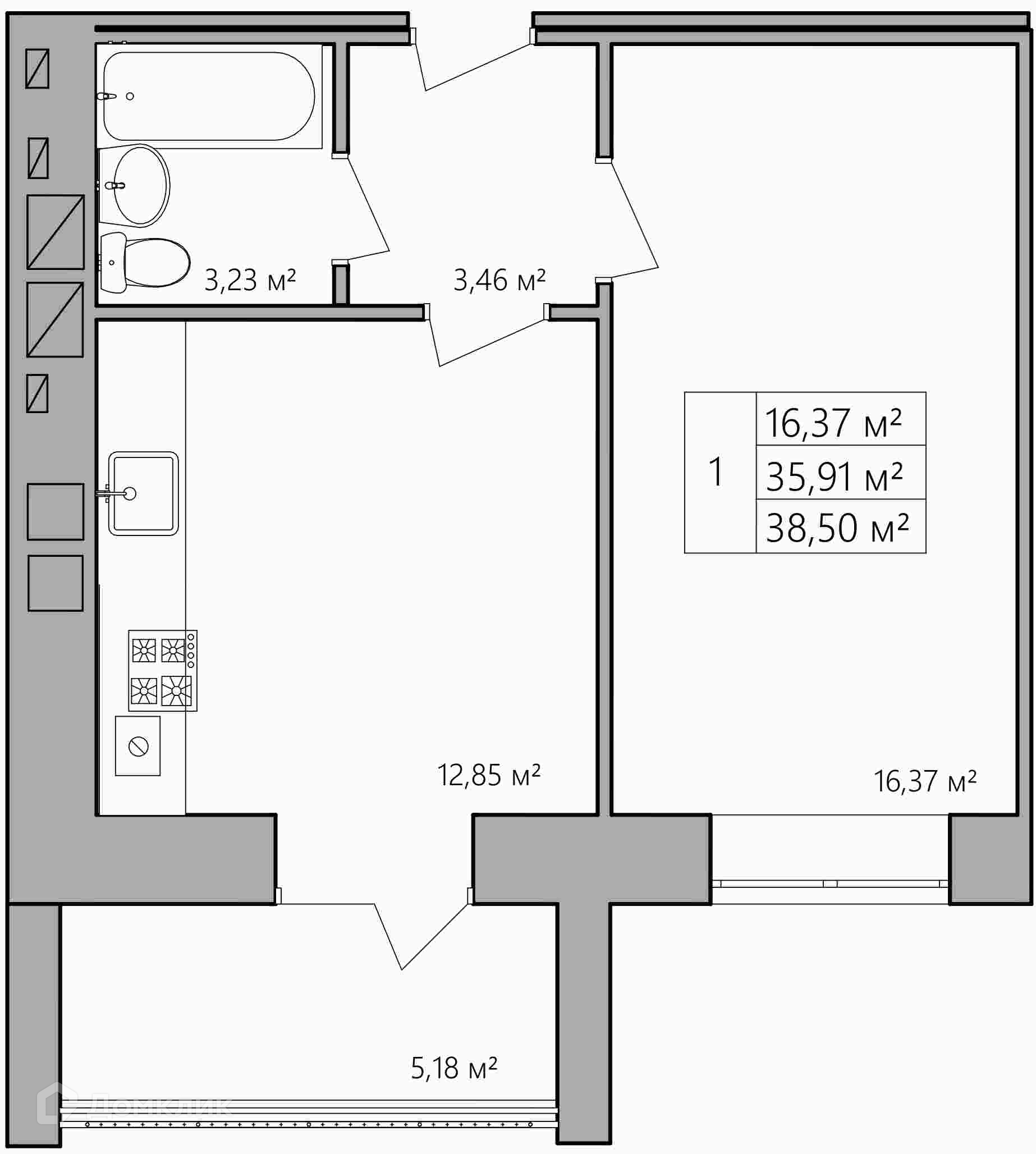
- ✅ Общая площадь: 38.5 м².
- ✅ Просторная жилая площадь: 16.37 м².
- ✅ Кухня: 12.85 м² — эргономичное пространство.
Особенности квартиры
- 🔧 Вариант отделки: без ремонта. Готовая база для вашего интерьера.
- 🌞 Большие окна наполняют помещения естественным светом.
- 🌿 Класс жилья: Комфорт — современные технологии.
Финансы и ипотека
- 💳 Ипотека от 27 308 руб/мес.
- 🏦 Подходит под семейную и IT ипотеку.
- 🤝 Эскроу-счета гарантирует спокойствие.
Чтобы узнать подробности и зафиксировать цену — позвоните нам прямо сейчас! 📞
Характеристики новостройки в ЖК Мирный
- Номер квартиры: 342
- Вариант отделки: без ремонта
- Общая площадь: 38.5 м²
- Жилая площадь: 16.37 м²
- Площадь кухни: 12.85 м²
- Класс жилья: Комфорт
- Количество комнат: 1-комнатная квартира
- Этаж: 9
- Этажность дома: 9
Полезная информация о ЖК Мирный