Описание квартиры в "ЖК Мирный"
Доступна к покупке 2-комнатная квартира в новом жилом комплексе "ЖК Мирный" 🏢.
Квартира расположена на 5-м этаже 9-этажного дома.
Прекрасный выбор для комфортной жизни.
Продуманная планировка
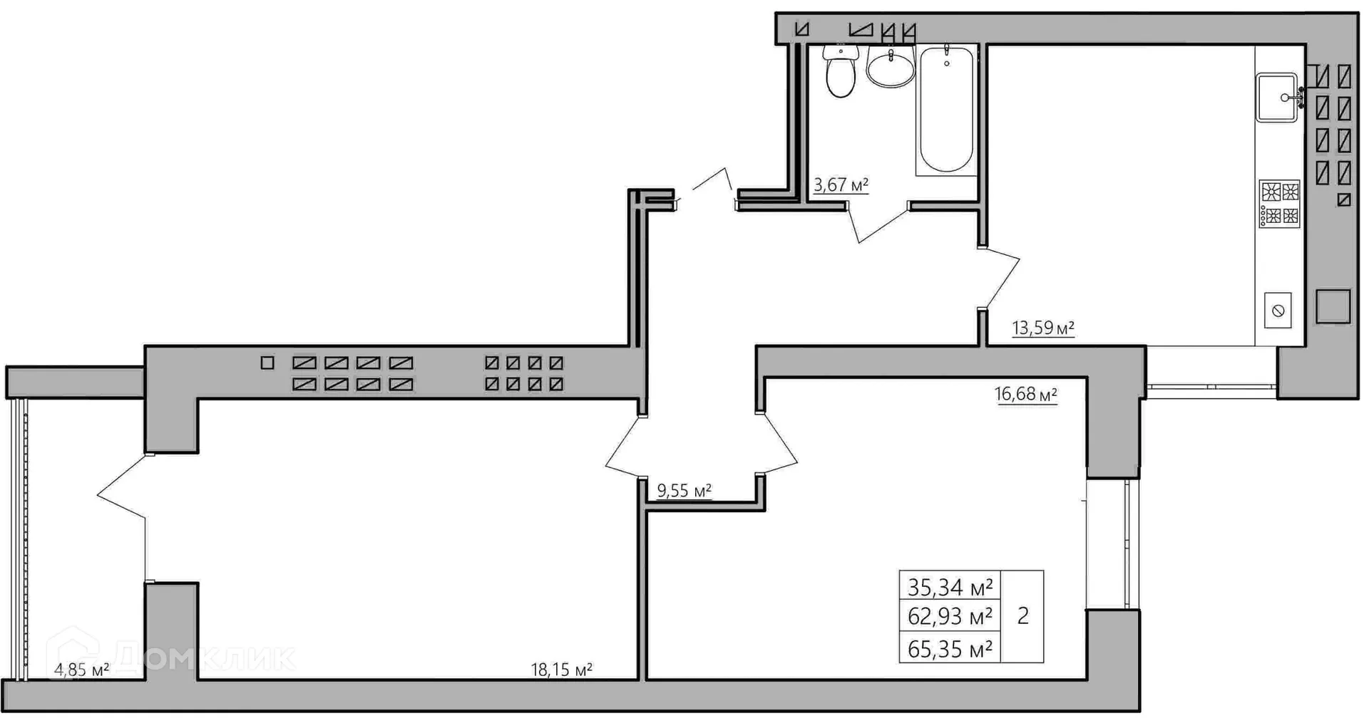
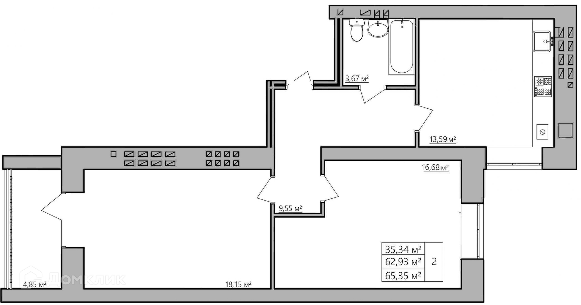
- ✅ Общая площадь: 64.06 м².
- ✅ Просторная жилая площадь: 35.34 м².
- ✅ Кухня: 13.59 м² — идеальна для семейных ужинов.
Особенности квартиры
- 🔧 Вариант отделки: без ремонта. Это позволит вам сразу приступить к ремонту.
- 🌞 Панорамное остекление наполняют помещения природным светом.
- 🌿 Класс жилья: Комфорт — благоустроенная территория.
Выгодные условия покупки
- 💳 Ипотека от 48 205 руб/мес.
- 🏦 Доступны льготные программы господдержки.
- 🤝 Безопасная сделка гарантирует надежность.
Чтобы узнать подробности и зафиксировать цену — позвоните нам прямо сейчас! 📞
Характеристики новостройки в ЖК Мирный
- Номер квартиры: 107
- Вариант отделки: без ремонта
- Общая площадь: 64.06 м²
- Жилая площадь: 35.34 м²
- Площадь кухни: 13.59 м²
- Класс жилья: Комфорт
- Количество комнат: 2-комнатная квартира
- Этаж: 5
- Этажность дома: 9
Полезная информация о ЖК Мирный