Кострома, Малышково м-н, Магистральная улица, 47
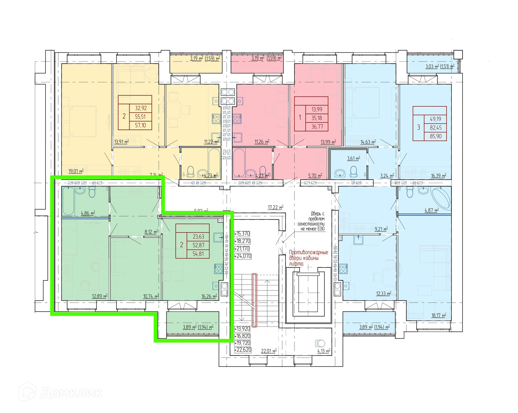
Площадь
Жилая
Кухня
Отделка
Класс жилья
Комнат
Номер кв.
Этаж
В продаже 2-комнатная квартира в современном жилом комплексе "ЖК НЕВСКИЙ" 🏢. Квартира расположена на 2-м этаже 11-этажного дома. Прекрасный выбор для инвестиций.
Для бесплатного бронирования и зафиксировать цену — позвоните нам прямо сейчас! 📞
Наш жилой комплекс, состоящий из 2 жилых корпусов, расположен на улице Магистральной дом 47, на одном из главных транспортных путей города. На территории и рядом с комплексом находится развитая инфраструктура с магазинами, спортзалом, торговым центром, а так же школой и детским садом. Просторные квартиры, уютный двор и все, что нужно для комфортной жизни.
Срок сдачи: 3 кв. 2025 г.
Срок сдачи: 3 кв. 2025 г.
Площади квартир
Этажность
Класс жилья
Корпусов
Стены