Обзор квартиры в "ЖК Сердце города"
Продается 3-комнатная квартира в современном жилом комплексе "ЖК Сердце города" 🏢.
Квартира расположена на 1-м этаже 2-этажного дома.
Отличный вариант для семьи.
Функциональная планировка
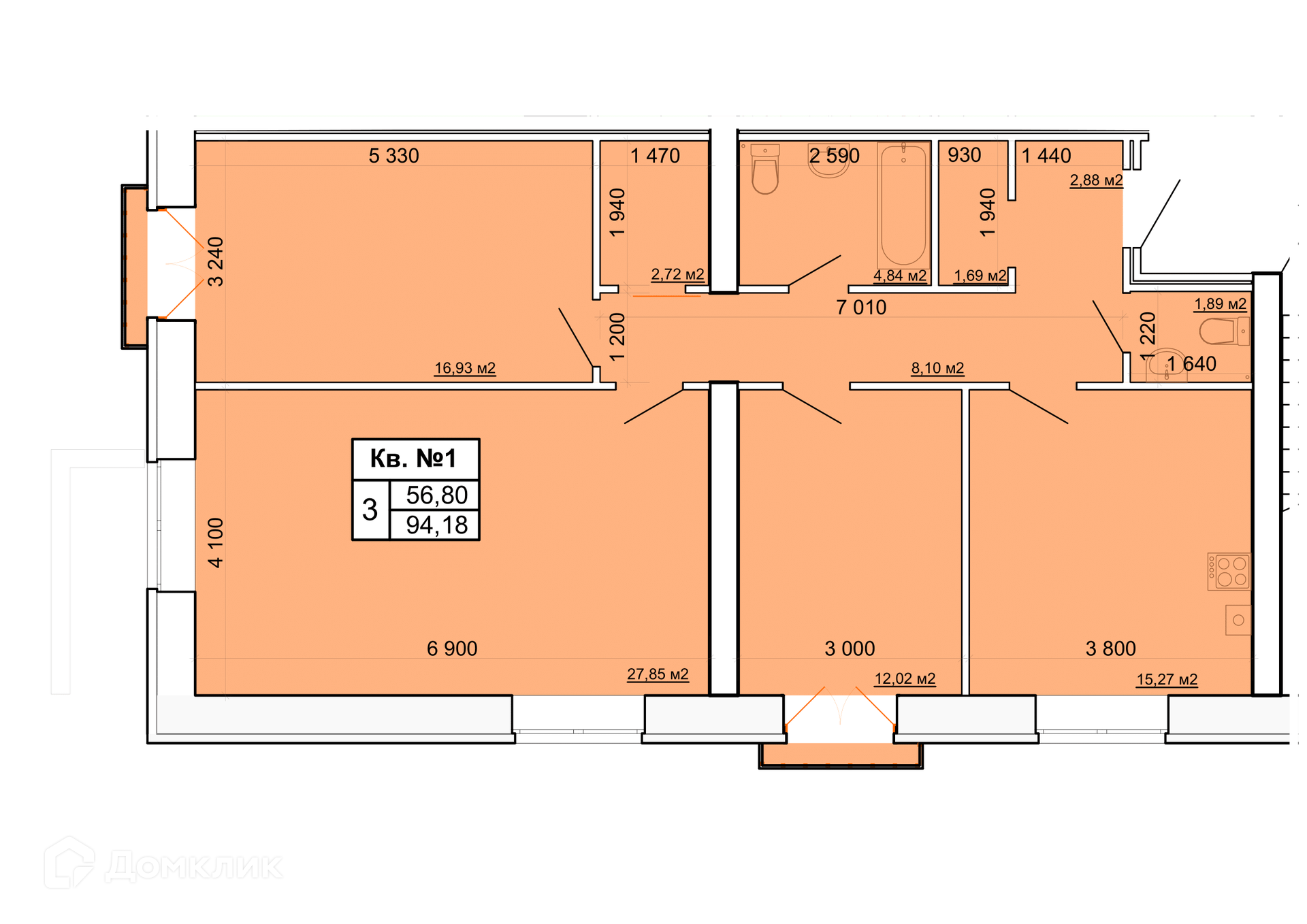
- ✅ Общая площадь: 94.18 м².
- ✅ Просторная жилая площадь: 56.8 м².
- ✅ Кухня: 15.27 м² — идеальна для семейных ужинов.
Особенности квартиры
- 🔧 Вариант отделки: без ремонта. Готовая база для вашего интерьера.
- 🌞 Увеличенные оконные проемы наполняют помещения природным светом.
- 🌿 Класс жилья: Премиум — современные технологии.
Выгодные условия покупки
- 💳 Ипотека от 127 223 руб/мес.
- 🏦 Доступны льготные программы господдержки.
- 🤝 Безопасная сделка гарантирует надежность.
Для бесплатного бронирования и зафиксировать цену — свяжитесь с нами прямо сейчас! 📞
Характеристики новостройки в ЖК Сердце города
- Номер квартиры: 1
- Вариант отделки: без ремонта
- Общая площадь: 94.18 м²
- Жилая площадь: 56.8 м²
- Площадь кухни: 15.27 м²
- Класс жилья: Премиум
- Количество комнат: 3-комнатная квартира
- Этаж: 1
- Этажность дома: 2
Полезная информация о ЖК Сердце города